Art Storage Spaces
Re-housing the collections in new and renovated storage areas will increase the museum’s capacity to safely store paintings and objects by more than 50%. This will alleviate overcrowded conditions and make more artworks available for study by Oberlin College faculty, students, outside researchers, and the public.
In July 2008, the National Endowment for the Humanities (NEH) awarded the AMAM $590,900 to purchase new storage furniture for the museum’s renovated art storage spaces. New state-of-the-art painting screens and storage cabinets will ensure long-term preservation and improve access to the museum collections.
|
|
|
Painting Storage
Painting Storage will be renovated to provide more usable space. The addition of work surfaces will enable safe handling of artworks during examinations and preparations for exhibitions and loans. Inadequate lighting will be replaced with suspended linear fluorescent fixtures with direct and indirect distribution and sleeves for filtering ultraviolet light.
|
|
|
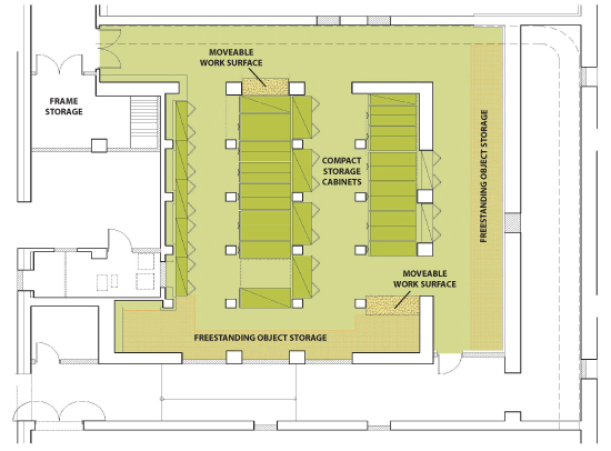
Object Storage
Object Storage is currently used for sculpture, furniture, ceramics, and other three-dimensional objects. This space will be reconfigured to create additional storage for paintings and a small number of large-scale contemporary sculptures. A work area will be installed, and lighting will be upgraded.
|
|

|
New Storage
This challenging project includes excavating an existing dirt floor and working around a dense grid of columns. Workspaces will be constructed and lighting upgraded. New storage units will be installed for small or extremely fragile objects, such as coins or early-20th-century glass. This space will also house both large and small sculptures, as well as textiles. |
|
 |